CURSO EN VIVO POR ZOOM

Modelado BIM con Tekla Structures y Dibujo de Estructuras en AutoCAD con Bloques Dinámicos

Domina AutoCAD y Tekla Structures, dos de las herramientas más demandadas en la industria de la construcción para la creación de planos y modelos estructurales.

Inscríbete Ahora

Beneficios del Curso

Automatizarás tareas de diseño repetitivas con bloques dinámicos y Autolisp.
Trabajarás en un entorno BIM, indispensable para los proyectos modernos.
Modelarás estructuras complejas en 3D con Tekla para una comprensión integral del proyecto.
Cuantificarás materiales y recursos directamente desde el modelo BIM.
Realizarás detalles de despiece de las barras de refuerzo.
Obtendrás un certificado digital que avala tus nuevas habilidades.

Características

  • Modalidad: Remota - Virtual (vía Zoom)
  • Duración: 20 horas (10 clases)
  • Inicio: 23 de Marzo
  • Horario: 20:00 - 22:00 (Hora Perú)
  • Días: Lunes a Viernes
  • Instructor: Ing. Luis Cardenas
  • Certificado: Digital (Físico opcional en Perú)
  • Grabaciones: Acceso a todas las clases grabadas.

Conoce el Curso por Dentro

Mira este video para descubrir todo lo que aprenderás y cómo nuestra metodología te ayudará a alcanzar tus metas.

Resultados del Curso

Ejemplos de lo que serás capaz de crear al finalizar.

Detalles de barras de refuerzo

Detalles de Barras de Refuerzo

Elaboración de planos de detalle

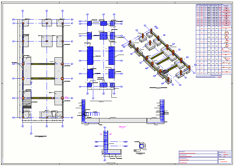
Elaboración de Planos de Detalle

Planos con detalles 3D

Planos con Detalles 3D

Despiece de acero

Despiece de Acero

Creación de barras de refuerzo por aplicaciones

Creación de Barras de Refuerzo por Aplicaciones

Temario del Curso

Un recorrido completo, desde los fundamentos hasta el modelado de estructuras complejas.

Día 1: Dibujo de Planos de Cimentación y Elementos Estructurales con Bloques Dinámicos

  • Introducción al curso y objetivos.
  • Introducción a AutoCAD y bloques dinámicos y Autolisp.
  • Creación y uso de bloques dinámicos en AutoCAD.
  • Dibujo de planos de cimentación utilizando bloques dinámicos.
  • Generación de detalles de cimentación con bloques dinámicos.
  • Dibujo de columnas utilizando bloques dinámicos.
  • Técnicas para el dibujo de losas aligeradas y losas macizas con bloques dinámicos.
  • Procedimientos para el dibujo de vigas con bloques dinámicos.
  • Creación de detalles de vigas con bloques dinámicos.
  • Dibujo de escaleras usando bloques dinámicos.
  • Presentación de plantilla de textos y acotados en diferentes escalas.
  • Preparación de Layouts o láminas de impresión en Autocad.
  • Uso de estilos de trazado o CTB para facilitar la presentación e impresión de planos.

Día 2: Iniciación en Tekla Structures

  • Configuración de Tekla Structures.
  • Exploración de la interfaz de usuario de Tekla.
  • Configuración de unidades y bases de datos.
  • Creación y manejo de grillas o mallas en Tekla.
  • Navegación y creación de vistas en Tekla.
  • Dibujo de zapatas y zapatas continuas en Tekla.

Día 3: Modelado Básico con Tekla Structures

  • Modelado de columnas en Tekla (columnas rectangulares, columnas circulares y columnas en L y T).
  • Modelado de vigas en Tekla (vigas rectangulares, vigas T, vigas de sección variable).
  • Dibujo de muros y placas en Tekla.

Día 4: Herramientas de Edición y Visualización en Tekla

  • Métodos de acotamiento en Tekla.
  • Herramientas de copiado y movimiento de objetos.
  • Manejo de propiedades de vista y área de trabajo.
  • Personalización de la interfaz y espacios de trabajo.
  • Ejercicios prácticos.

Día 5: Reforzamiento de Estructuras en Tekla

  • Principios de reforzamiento de estructuras.
  • Reforzamiento de zapatas en Tekla.
  • Reforzamiento de columnas en Tekla.
  • Reforzamiento de vigas en Tekla.

Día 6: Reforzamiento de Estructuras en Tekla

  • Reforzamiento de placas en Tekla.
  • Reforzamiento de losas aligeradas.
  • Reforzamiento de losas macizas.
  • Reforzamiento de escaleras.

Día 7: Cuantificación y Exportación de Datos

  • Cuantificación de volúmenes de concreto en Tekla.
  • Cuantificación de armaduras y su representación.
  • Exportación de datos y cuantificaciones a Excel.
  • Análisis de resultados y optimización de recursos.

Día 8: Documentación y Presentación de Proyectos

  • Creación de láminas y plantillas en Tekla.
  • Anotaciones y dimensionamiento en modo dibujo.
  • Generación y manipulación de vistas en 3D.
  • Creación de vistas en corte y detalles constructivos.
  • Elaboración de cuadros de despiece de acero.
  • Preparación de planos de cimentación.
  • Realizar detalles de zapatas y cimientos.
  • Hacer detalles de columnas.
  • Preparación de planos de losas aligeradas y macizas.
  • Realizar detalles de escaleras.
  • Exportar de Tekla a Autocad.
  • Exportar de Tekla a Revit.

Día 9: Modelado de Muros de Contención en Voladizo y Alcantarillas

  • Introducción al diseño de muros de contención en voladizo.
  • Configuración del modelo estructural en Tekla.
  • Modelado de secciones típicas de muros de contención.
  • Reforzamiento y cuantificación de muros de contención.
  • Introducción al diseño y modelado de alcantarillas.
  • Creación de detalles constructivos para alcantarillas.
  • Exportación de datos para planos y documentación.

Día 10: Modelado de Reservorios

  • Introducción al diseño estructural de reservorios.
  • Configuración del modelo estructural en Tekla.
  • Modelado de reservorios cilíndricos y rectangulares.
  • Reforzamiento y análisis estructural de reservorios.
  • Cuantificación de armaduras y volúmenes de concreto.
  • Preparación de planos y detalles para reservorios.

Inscríbete Hoy y Transforma tu Carrera

Accede a 20 horas de contenido práctico, materiales de apoyo, certificado y clases grabadas de por vida.

Precio Regular: $95.00 USD

Precio Promoción: $65.00 USD o S/.220.00 PEN

(Promoción válida por tiempo limitado)

Las clases se imparten en vivo a través de la plataforma Zoom. Si pagas con PayPal, contáctanos por WhatsApp para confirmar tu inscripción.

Contactar por WhatsApp